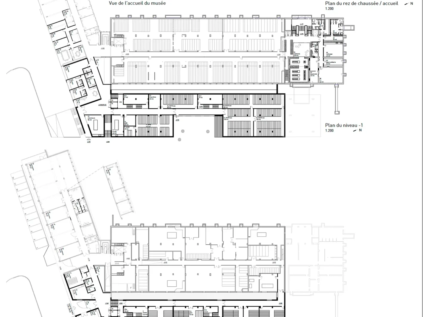
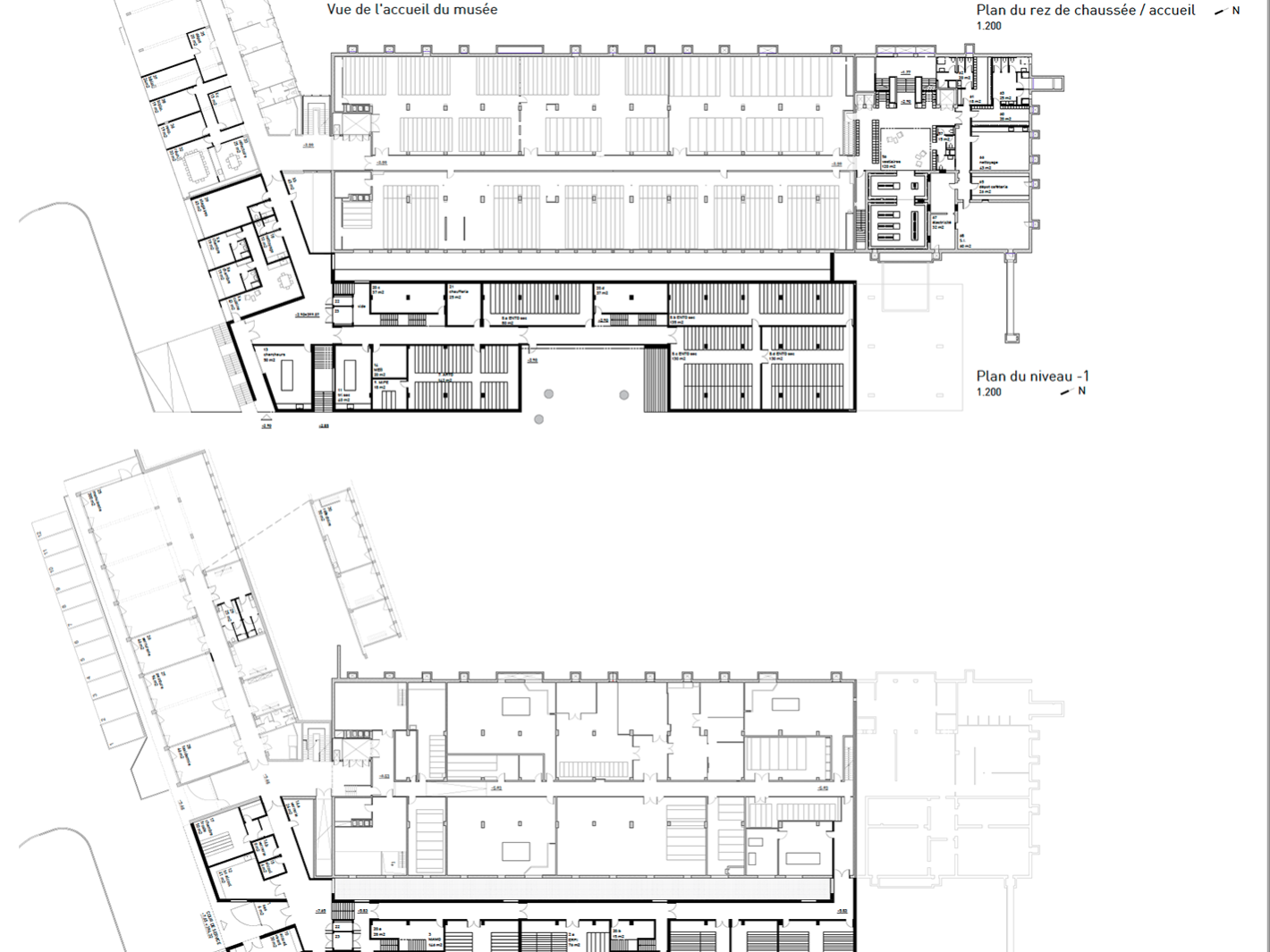
Si è proposto un nuovo edificio ad “L”, in parte ipogeo, posto a voler avvolgere il corpo di fabbrica principale.
In questo modo si sono potuti razionalizzare percorsi e funzioni come richiesto dal bando.
Una particolare attenzione è stata posta nel ridisegnare il percorso di ingresso al Museo.
Con Antonello Stella e Roberto Ricci.




