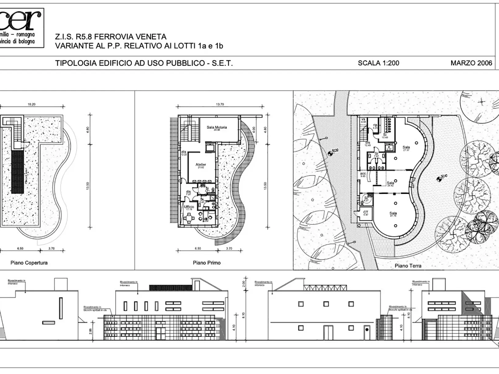
Variante al piano particolareggiato che ha previsto una drastica diminuzione della Superficie Utile realizzabile, a fronte di un aumento della superficie verde, dell’inserimento all’interno del Parco Pubblico di una dotazione di Superficie Utile di Standard ad Uso Pubblico ed all’eliminazione del parcheggio interrato.







