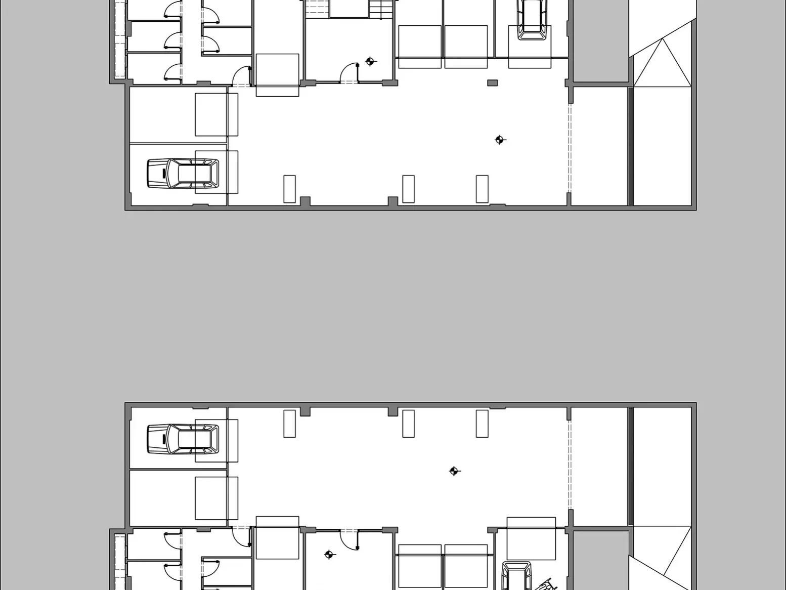
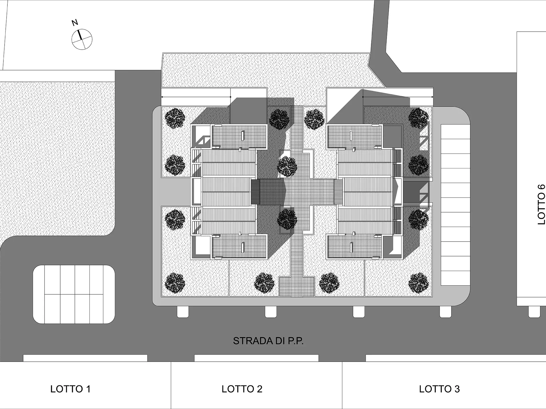
L’intervento consiste nella realizzazione di 12 alloggi ERP – Edilizia Residenziale Pubblica – in linea di proprietà dell’Azienda Casa Emilia-Romagna di Bologna suddivisi in due palazzine; due piani residenziali fuori terra ed un piano interrato a destinazione autorimessa e cantine.
Gli alloggi son stati studiati per essere trasformati nel tempo con lavori limitati.
Progetto realizzato











