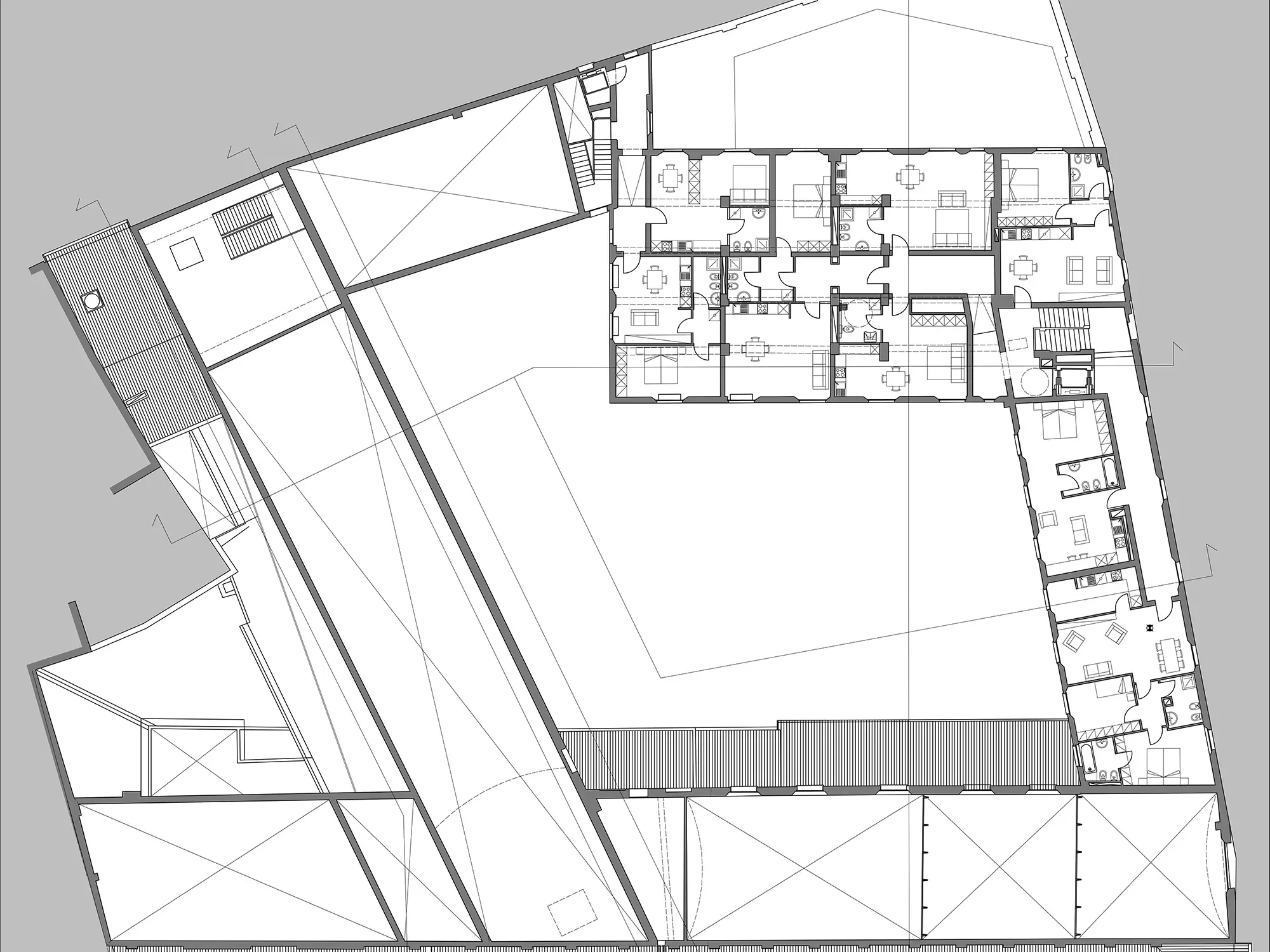
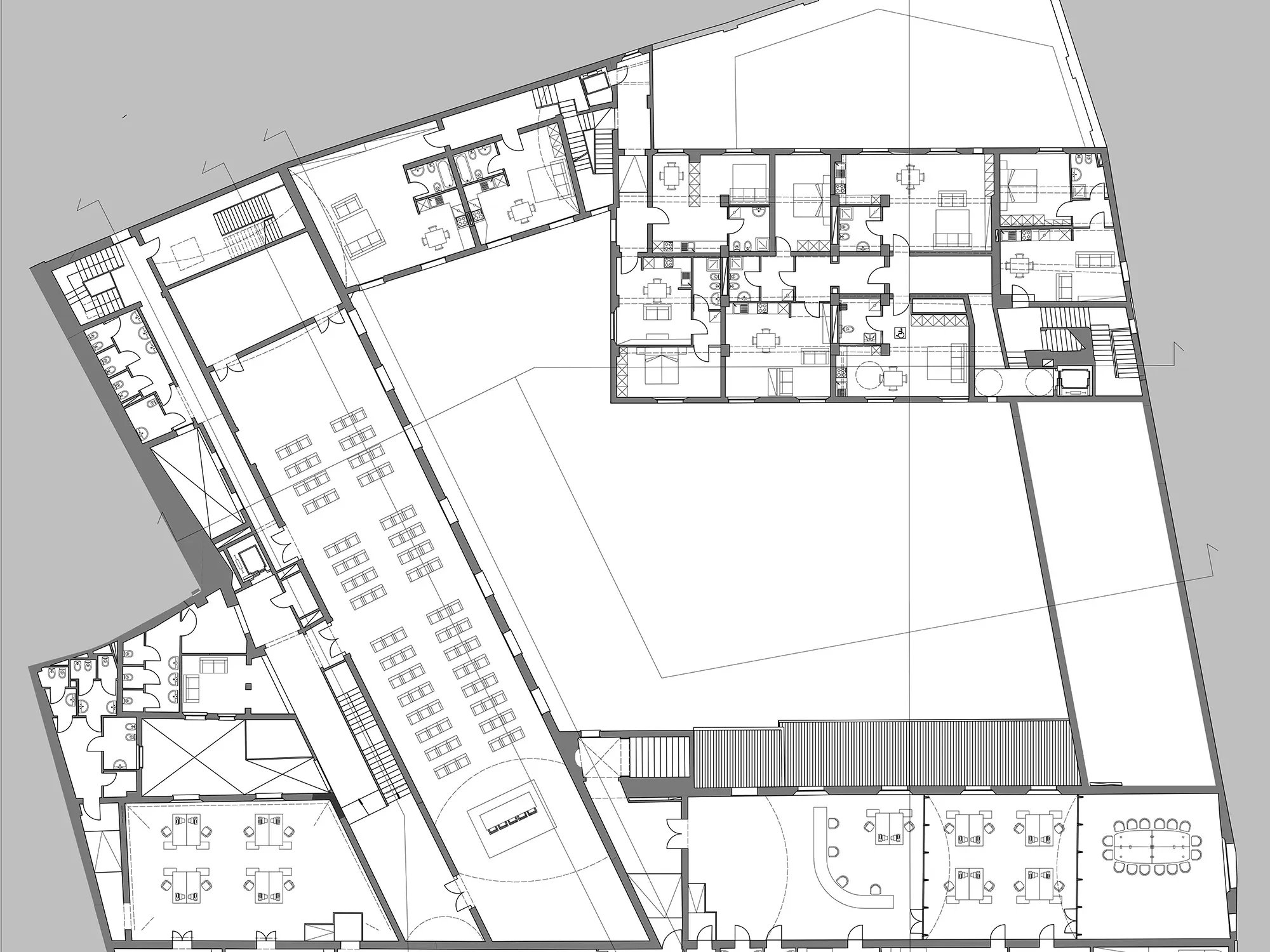
Importante contenitore storico di proprietà della Provincia di Bologna – ora ceduto ad INVIMIT – nel quale trovano luogo diverse destinazioni funzionali quali la residenza sociale, attività di ristorazione al piano semi interrato, attività commerciali al piano terra, ed attività terziarie nelle maniche D’Azeglio S. Procolo e quella di confine con le altre unità dell’isolato.
Il primo stralcio di €. 4.500.000 è stato utilizzato per il restauro dell’involucro, per la riqualificazione della parte residenziale, mentre le altre parti sono state oggetto di consolidamento statico in attesa di futuri utilizzatori.















