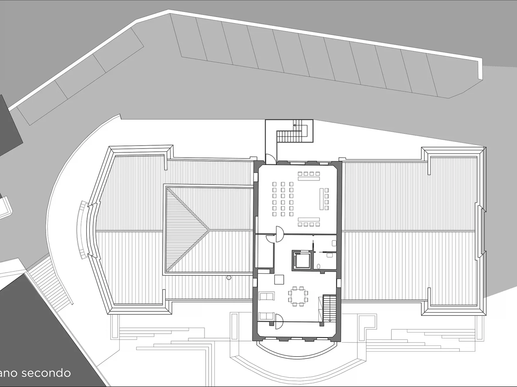
Restauro e riqualificazione funzionale del Municipio – ex Casa del Fascio – edificio vincolato dalla Soprintendenza.
Studio di fattibilità per un progetto guida di ristrutturazione generale dell’intero edificio da attuarsi per stralci funzionali in relazione all’aggiudicazione di specifici bandi di finanziamento.
Un primo stralcio ha riguardato la sostituzione degli infissi del piano primo con elementi realizzati su disegno.











