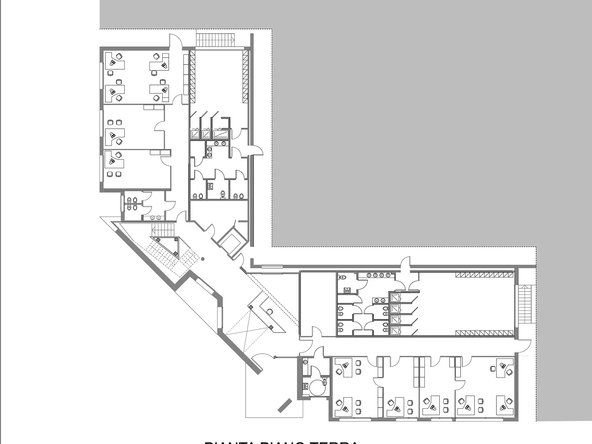
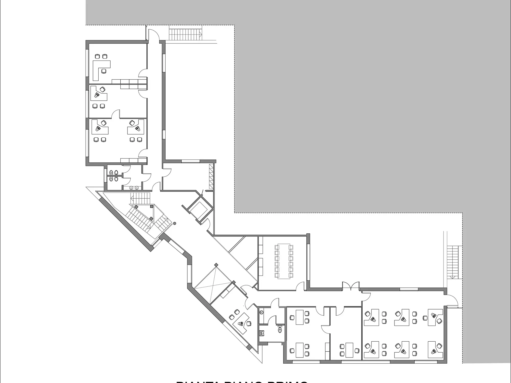
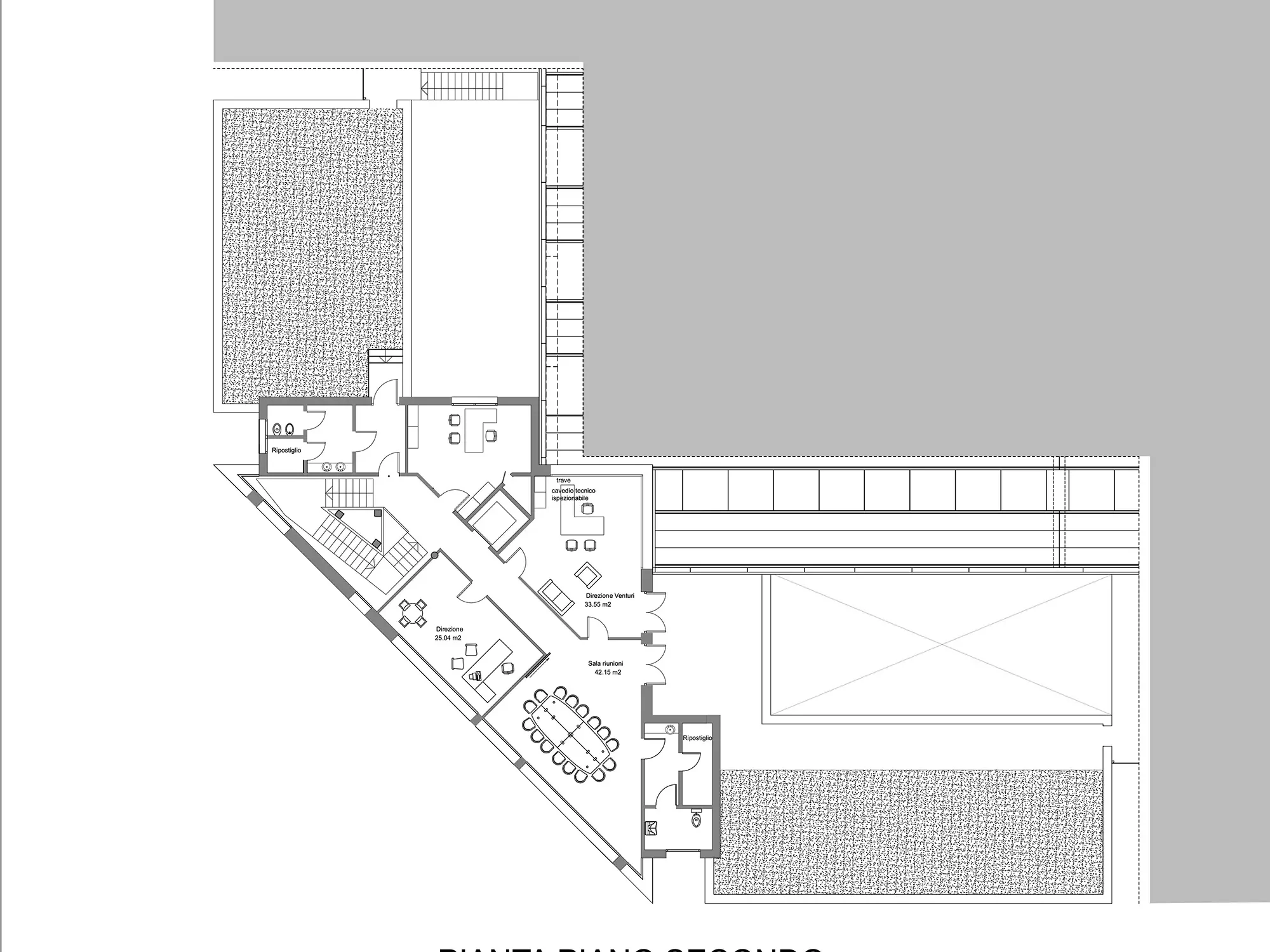
Si tratta di uno dei primi edifici a zero emissioni e NZEB realizzato a Bologna nel quale si è tenuto conto dei principi bioclimatici.
E’ costituito da un corpo uffici realizzato con struttura in acciaio, tamponature e divisori in struttura metallica stratificata a secco, rivestito da una parete microventilata in alluminio.
La parte produttiva è in prefabbricati pesanti in cls con un ulteriore strato coibente in eps.
E’ stato segnalato dall’Istituto Beni Culturali della Regione Emilia-Romagna nell’ambito della rassegna “Selezione Architettura” 2012.
























