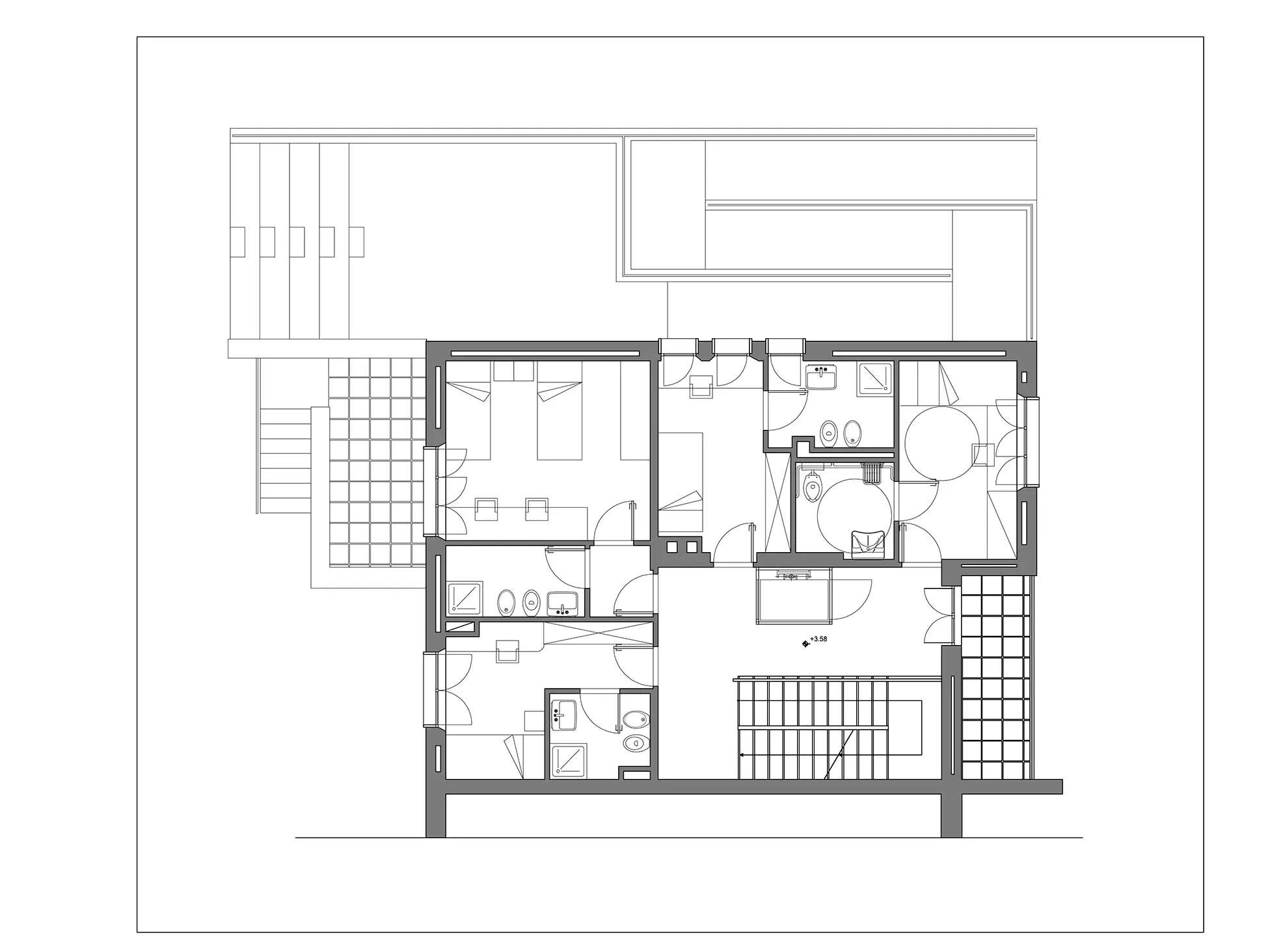
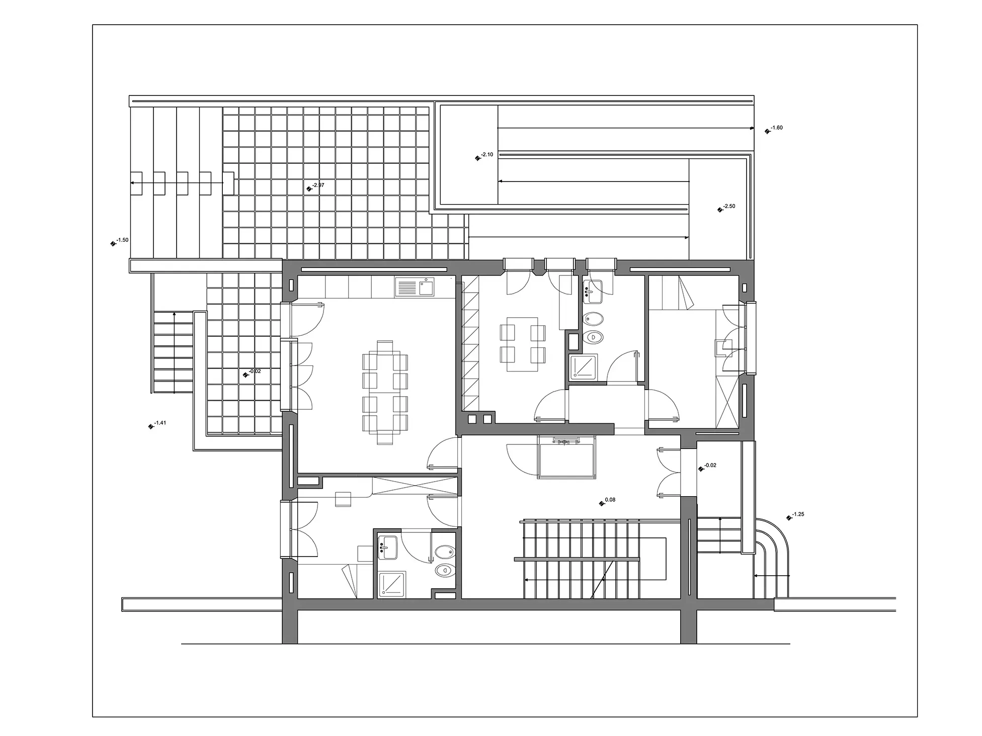
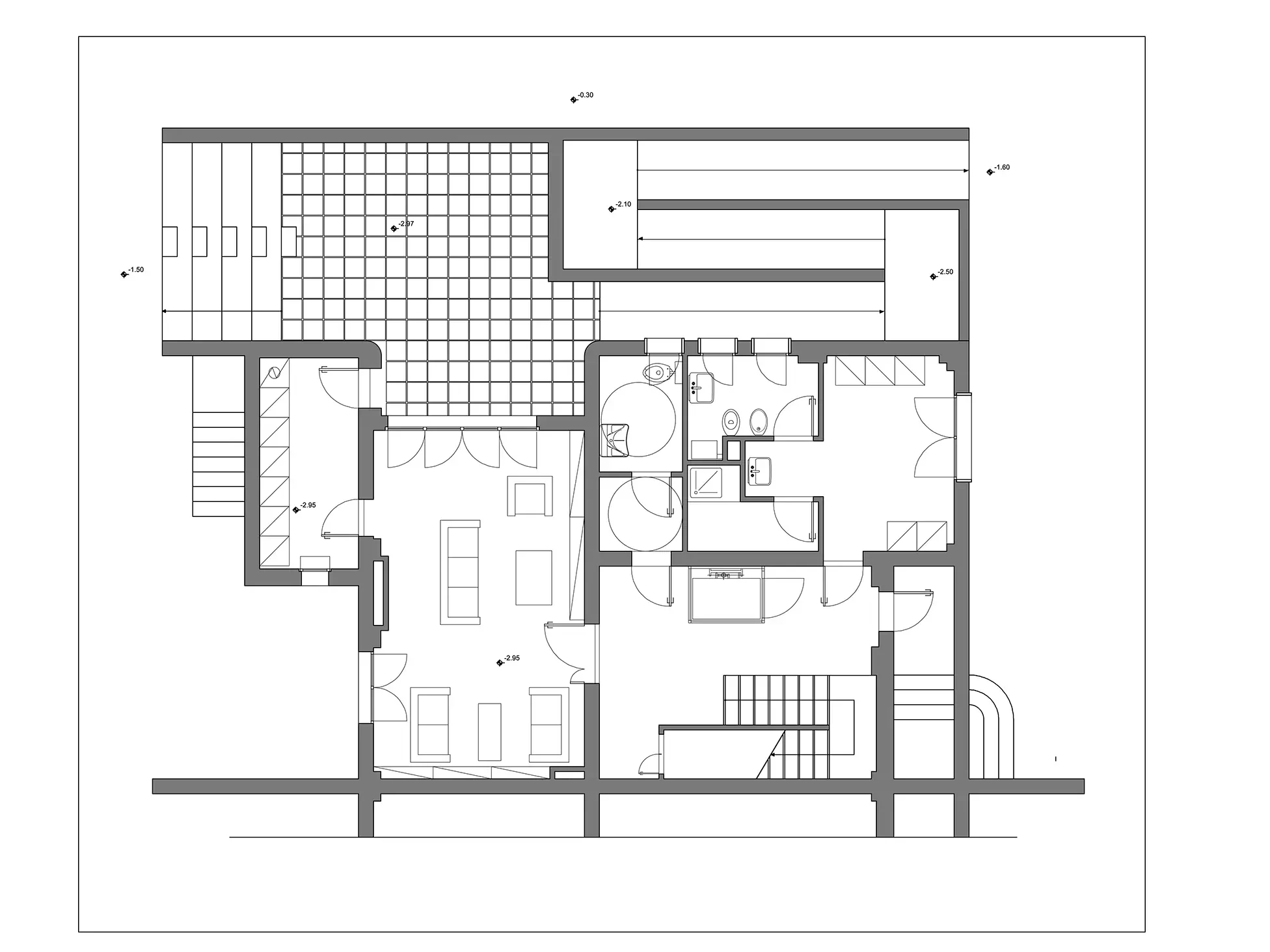
Restauro ed adeguamento igienico funzionale di un’unità immobiliare all’interno dell’ex Villaggio della rivoluzione fascista, vincolato dalla Soprintendenza, da destinarsi a struttura residenziale psichiatrica.
Intervento realizzato intorno alla metà degli anni ’30 che risulta essere quasi un unicum in Italia, composto da 12 villette bifamiliari, due edifici il linea che schermano il comparto dalle strade principali, ed un asilo nido.
Si è intervenuti su metà di una delle dodici villette sita in via Busacchi 8, di proprietà di A.C.E.R. Bologna.













